Eladó Lakás
Hirdetéskód: 9181545
Bp. XIV. Ilka utcai franchise iroda
96 m2
ALAPTERÜLET3
SZOBASZÁMnincs megadva
ÉPÍTÉSGáz (cirkó)
FŰTÉS- CSOK igénybe vehető nem
- Belső szintek 5
- Tetőtér beépíthető nem
- Építés éve 1904
- Fűtés Gáz (cirkó)
- Klíma nem
- Szigetelt nem
A+++
A++
A+
A
B
C
D
E
F
G
H
I
Az ingatlan leírása
Referens: ETL/105935
Eladó egy 2020-ban, modern stílusban, luxus kivitelben, teljes körűen felújított polgári lakás a Corvin-negyedben.
Leírás
A ház:
- a lakás egy régi polgári 5 emeletes, körfolyosós ház 3. emeletén található
- a ház kívülről felújított, szigetelt
- a tető felújítása folyamatban van
- a ház megújulása folyamatos
A lakás:
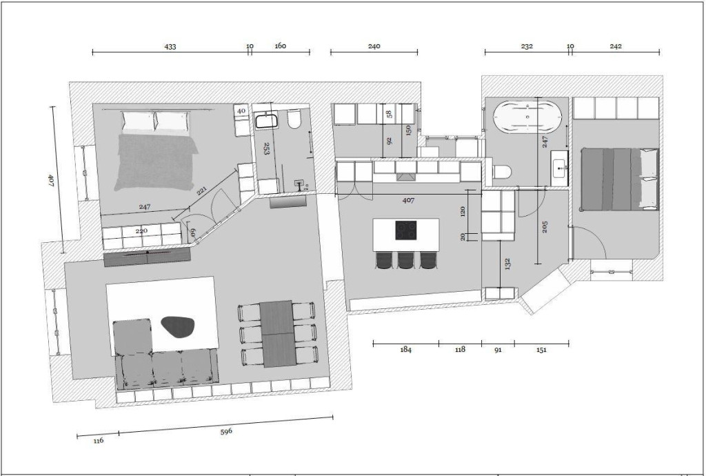
- 96 négyzetméteres 2 hálószoba, 2 fürdő, háztartási helyiség, nagyméretű nappali, konyha és étkező.
- egyik hálószoba on suite fürdőszobával rendelkezik
- az egyik fürdő káddal, a másik zuhanyzóval rendelkezik
- nagy belmagasság - 3,5 m
- a melegvizet és a fűtést modern, kondenzációs Westen kazán biztosítja, amely beépített 50 literes puffer tartállyal rendelkezik a folyamatos kiegyensúlyozottan elérhető melegvíz biztosítása érdekében
- az összes helyiségben padlófűtés van, az ehhez megfelelő burkolatokkal
- minőségi hideg és meleg burkolatok lettek beépítve (padlófűtéshez optimális, 3 rétegű tömörfa parketta - svédpadló)
- az ablakok új műanyag nyílászárók - 3 rétegű magas hőmegtartó képességű, zajvédő üvegezés
- hálószoba falába zajvédő szigetelés került beépítésre
- Klimatizált - Daikin slpit klíma
- egyedi beépített bútorok - konyhabútor, előszobai gardrób és cipősszekrény, hálószobai beépített gardróbszekrények, fürdőszoba bútorok (tároló szekrény, szennyestartó)
- beépített Bosch konyhai gépek ( mosogatógép, indukciós főzőlap, hűtő-fagyasztó, pára és szagelszívó, mikró, sütő)
- teljesen új elektromos és gépészeti rendszer - 3 fázison összesen 60 Amper (3x20 A)
- a lakás teljes elektromos kábelezése új
- a víz-, gáz- és fűtésrendszer szintén teljes átalakításon és cserén esett át
- garázsbérlet lehetősége a ház mellett lévő új építésű házban.
A lakás új kinézetét lakberendező tervezte, amelyhez a bútorok is hozzá tartoznak. Ezért a nem beépített bútorok is alku tárgyát képezhetik az eladás során.
Környék:
Corvin pláza és Corvin mozi, Corvin sétány pár perc sétára. Üzletek, posta, szupermarket, gyógyszertár, éttermek, mind közvetlen közelben.
Tömegközlekedés:
4-6 villamos, 3-as metró szintén pár perc sétára. Ugyanakkor mivel mellékutca, így nem zajos, se a metró, se a villamos nem hallatszik.
Közös ktg:
26000 Ft
(szemétszállítás, közös helységek takarítása, felújítási alap, liftkarbantartás)
Eladó egy 2020-ban, modern stílusban, luxus kivitelben, teljes körűen felújított polgári lakás a Corvin-negyedben.
Leírás
A ház:
- a lakás egy régi polgári 5 emeletes, körfolyosós ház 3. emeletén található
- a ház kívülről felújított, szigetelt
- a tető felújítása folyamatban van
- a ház megújulása folyamatos
A lakás:
- 96 négyzetméteres 2 hálószoba, 2 fürdő, háztartási helyiség, nagyméretű nappali, konyha és étkező.
- egyik hálószoba on suite fürdőszobával rendelkezik
- az egyik fürdő káddal, a másik zuhanyzóval rendelkezik
- nagy belmagasság - 3,5 m
- a melegvizet és a fűtést modern, kondenzációs Westen kazán biztosítja, amely beépített 50 literes puffer tartállyal rendelkezik a folyamatos kiegyensúlyozottan elérhető melegvíz biztosítása érdekében
- az összes helyiségben padlófűtés van, az ehhez megfelelő burkolatokkal
- minőségi hideg és meleg burkolatok lettek beépítve (padlófűtéshez optimális, 3 rétegű tömörfa parketta - svédpadló)
- az ablakok új műanyag nyílászárók - 3 rétegű magas hőmegtartó képességű, zajvédő üvegezés
- hálószoba falába zajvédő szigetelés került beépítésre
- Klimatizált - Daikin slpit klíma
- egyedi beépített bútorok - konyhabútor, előszobai gardrób és cipősszekrény, hálószobai beépített gardróbszekrények, fürdőszoba bútorok (tároló szekrény, szennyestartó)
- beépített Bosch konyhai gépek ( mosogatógép, indukciós főzőlap, hűtő-fagyasztó, pára és szagelszívó, mikró, sütő)
- teljesen új elektromos és gépészeti rendszer - 3 fázison összesen 60 Amper (3x20 A)
- a lakás teljes elektromos kábelezése új
- a víz-, gáz- és fűtésrendszer szintén teljes átalakításon és cserén esett át
- garázsbérlet lehetősége a ház mellett lévő új építésű házban.
A lakás új kinézetét lakberendező tervezte, amelyhez a bútorok is hozzá tartoznak. Ezért a nem beépített bútorok is alku tárgyát képezhetik az eladás során.
Környék:
Corvin pláza és Corvin mozi, Corvin sétány pár perc sétára. Üzletek, posta, szupermarket, gyógyszertár, éttermek, mind közvetlen közelben.
Tömegközlekedés:
4-6 villamos, 3-as metró szintén pár perc sétára. Ugyanakkor mivel mellékutca, így nem zajos, se a metró, se a villamos nem hallatszik.
Közös ktg:
26000 Ft
(szemétszállítás, közös helységek takarítása, felújítási alap, liftkarbantartás)