Eladó Ház- házrész
Hirdetéskód: 9181757

Duna House - Új-Lak Bázis Kft.

150 m2
ALAPTERÜLET
5
SZOBASZÁM
nincs megadva
ÉPÍTÉS
Elektromos
FŰTÉS
  • CSOK igénybe vehető nem
  • Tetőtér beépíthető nem
  • Építés éve 2024
  • Fűtés Elektromos
  • Klíma nem
  • Szigetelt nem
Energetikai besorolás: Nincs meghatározva
A+++
A++
A+
A
B
C
D
E
F
G
H
I

Az ingatlan leírása

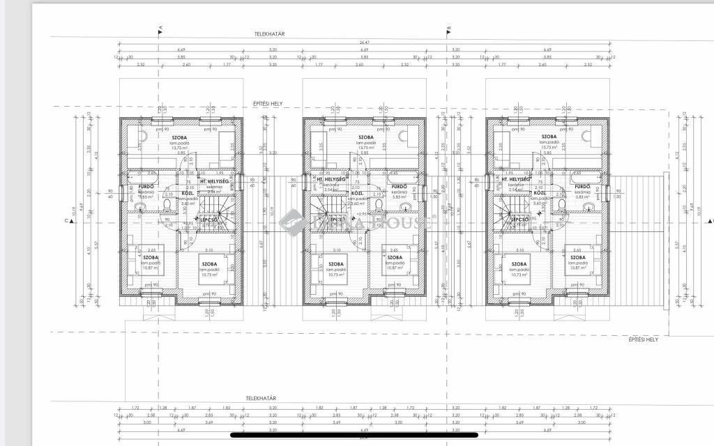
ELADÓ ÚJ ÉPÍTÉSŰ 2 szintes, 5 szobás CSALÁDI HÁZ VECSÉS SZÍVÉBEN IGÉNYES LAKÓPARKBAN!fedett autóbeállási lehetőség az árban(40 m2)1.INGATLANT KÍNÁLOM ELADÁSRACSOK PLUSZ, KEDVEZMÉNYES HITELRE ALKALMAS ELADÓ INGATLANOK!3 családi ház egy közös telekre épült, külön leválasztott saját udvar és gépkocsibeálló.116 m2 alapterület, további teraszok mérete 15 m2 és feddett beálló autóra 40 m2.Telek mérete: 200 m2. Külön helyrajzi számmal rendelkeznek.Játszótér közelsége 100 méter a lakóparkban.Kialakításaföldszinten: szoba, fürdő+wc, előtér, tágas nappali, konyha+étkező, kamra, nyitott terasz.emeleten: 3 tágas szoba, fürdő+wc, közlekedő, háztartási helyiség.Roppant világos, kiváló helyen helyezkedik el, új építésű lakóparkban.EXTRÁK: - elektromos kapu, klíma kiállások, rejtett redőnytok+motor előkészítése, térkővel borított fedett autóbeállási lehetőség Hőszivattyús fűtés padlófűtés mindenhol. Minőségi burkoltok, térburkolatok és szaniterek az ingatlanban.Műszaki jellemzői: külső falazat 30 cm kerámia tégla amin 10 cm szigetelés található. Válaszfalak 10 cm-esek, aljzatban 7 cm-es lépésálló szigetelés.SOK REFERENCIA MUNKÁT TUDOK MUTATNI, TÖBB MINT 25 ÉVES TAPASZTALATTAL RENDELKEZIK A KIVITELEZŐ.Közelben: Market Centrál, Iskola, Óvoda, Vasútállomás.Budapest távolsága pár perc autóval.CBA, Aldi autóval 5 percre.Amennyibe felkeltetem érdeklődését várom hívását .További információért hívjon bizalommal!!Vásárlását szakszerű tanácsadással segítjük, hitel ügyintézés lebonyolítása egy helyen.

Térkép

A hirdető elérhetősége

Duna House - Új-Lak Bázis Kft.

Káplár Ildikó
+36 30 468