Eladó Ház- házrész
Hirdetéskód: 9188042
Debrecen Kürtös utca 8 - OTP Ingatlanpont Iroda
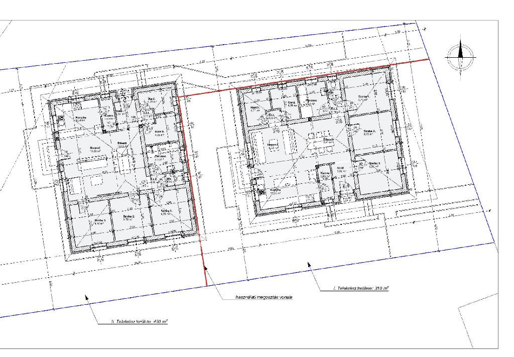
450 m2
ALAPTERÜLET3
SZOBASZÁMnincs megadva
ÉPÍTÉSGáz (cirkó)
FŰTÉS- CSOK igénybe vehető nem
- Belső szintek 1
- Tetőtér beépíthető nem
- Építés éve 2025
- Fűtés Gáz (cirkó)
- Klíma nem
- Szigetelt nem
A+++
A++
A+
A
B
C
D
E
F
G
H
I
Az ingatlan leírása
Sáránd központjában eladó egy ÚJ ÉPÍTÉSŰ 90 m2-es, Nappali + 3 szobás minőségi kivitelezésű földszintes családi ház!!
Az ingatlan elhelyezkedését tekintve, a város egyik leggkedveldtebb környéken , igazán családbarát, csendes utcájában helyezkedik el. Jól megközelíthetősége révén kiváló választást biztosít minden korosztály számára. Mindössze 5 perc sétára található élelmiszerbolt, buszmegálló, orvosi rendelő, új óvoda és bölcsőde.
Ingatlan főbb paraméterei :
- várható átadás 2026. 07. 01
- 550 m2- telek, térkövezet járda és terasz
- Porotherm 30 NF tégla falazat
- betoncserép födém
- 15 cm szigetelés, 30 cm födém szigetelés
- 3 rétegű műanyag nyillászárók
- kondenzációs gázkazán vagy Hőszivattyú , padlófűtés az egész házban
- szobákban laminált parketta, többi helyiségben járólap
- 3 szoba + 2 fürdőszoba wc- vel
- elektromos áram 32 A
- belső ajtók a vevő igényék megfelelő színben kerül beépítésre ( vételár része )
További információért hívjon bizalommal akár hétvégén is. Megtekintésre telefonos egyeztetés alapján van lehetőség. Kedvezményes kamatozású lakásvásárlási és felújítási hitelek az OTP hátterével irodánkban.
Az ingatlan elhelyezkedését tekintve, a város egyik leggkedveldtebb környéken , igazán családbarát, csendes utcájában helyezkedik el. Jól megközelíthetősége révén kiváló választást biztosít minden korosztály számára. Mindössze 5 perc sétára található élelmiszerbolt, buszmegálló, orvosi rendelő, új óvoda és bölcsőde.
Ingatlan főbb paraméterei :
- várható átadás 2026. 07. 01
- 550 m2- telek, térkövezet járda és terasz
- Porotherm 30 NF tégla falazat
- betoncserép födém
- 15 cm szigetelés, 30 cm födém szigetelés
- 3 rétegű műanyag nyillászárók
- kondenzációs gázkazán vagy Hőszivattyú , padlófűtés az egész házban
- szobákban laminált parketta, többi helyiségben járólap
- 3 szoba + 2 fürdőszoba wc- vel
- elektromos áram 32 A
- belső ajtók a vevő igényék megfelelő színben kerül beépítésre ( vételár része )
További információért hívjon bizalommal akár hétvégén is. Megtekintésre telefonos egyeztetés alapján van lehetőség. Kedvezményes kamatozású lakásvásárlási és felújítási hitelek az OTP hátterével irodánkban.