Eladó Ház- házrész
Hirdetéskód: 9183311
Miskolc - OTP Ingatlanpont Iroda
630 m2
ALAPTERÜLET3
SZOBASZÁMnincs megadva
ÉPÍTÉSnincs megadva
FŰTÉS- CSOK igénybe vehető nem
- Tetőtér beépíthető nem
- Építés éve 1991
- Klíma nem
- Szigetelt nem
A+++
A++
A+
A
B
C
D
E
F
G
H
I
Az ingatlan leírása
Családi ház eladó Sajószögeden
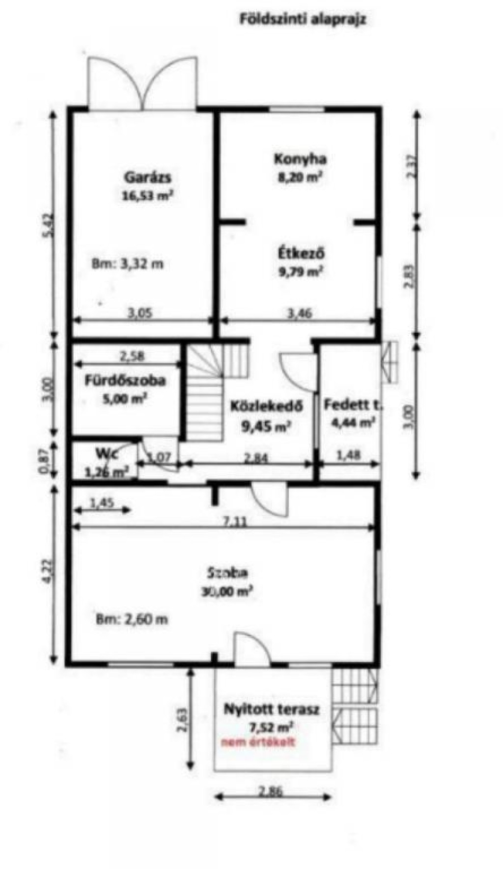
138 m2-es hagyományos szerkezetű családi házat kínálok eladásra rendezett, családi házas környezetben. Az 1991-ben épült ingatlan részben alápincézett, gázszilikát falazatú, a tetőn cserép van. Fűtéséről gázkazán gondoskodik. A földszinten egy nagyméretű nappali, WC, fürdő, konyha-étkező előszoba található, a tetőtéri részben egy zuhanyzós fürdőszoba WC-vel, 2 szoba és egy előtéri helyiség. A pinceszintre kintről jutunk le, itt több különálló fakk található, az egyikben műhely rész, a másikban a gázkazán és a vegyes tüzelésű kazán. A kert hátsó részén több melléképület van, ezek nincsenek jó állapotban. A földszinti részhez építettek egy teraszt, ami a képeken is látszik, ez viszont nincs feltüntetve a térképszelvényen.
________________________________________
Főbb jellemzők:
Alapterület: 138 m2, 3 szoba
telek: 630 m2
Építés éve: 1991
Szerkezet: Hagyományos, részben alápincézett, földszint+tetőtér beépítés, pince
Állapot: Közepes állapotú
Közművek: Gázkazánnal fűtött. Melegvíz-ellátás jelenleg nincs, a villanybojler hiányzik.
Kiegészítők: Különálló, de rossz állapotú melléképületek (állattartásra), amelyek értéket nem képviselnek. A ház mögötti terasz a térképmásolaton nem szerepel.
________________________________________
Fontos információk:
Az ingatlan jelenlegi állapotában nem alkalmas államilag támogatott hitel felvételére.
CSAK KÉSZPÉNZES vevők jelentkezését várjuk.
Ideális választás azoknak, akik egy megbízható szerkezetű házat keresnek, amit saját ízlésük szerint, felújítással alakíthatnak ki.
Amennyiben felkeltettem érdeklődését, keressen bizalommal!
Az ingatlan csak nálunk vásárolható meg!
41500000 Ft
138 m2-es hagyományos szerkezetű családi házat kínálok eladásra rendezett, családi házas környezetben. Az 1991-ben épült ingatlan részben alápincézett, gázszilikát falazatú, a tetőn cserép van. Fűtéséről gázkazán gondoskodik. A földszinten egy nagyméretű nappali, WC, fürdő, konyha-étkező előszoba található, a tetőtéri részben egy zuhanyzós fürdőszoba WC-vel, 2 szoba és egy előtéri helyiség. A pinceszintre kintről jutunk le, itt több különálló fakk található, az egyikben műhely rész, a másikban a gázkazán és a vegyes tüzelésű kazán. A kert hátsó részén több melléképület van, ezek nincsenek jó állapotban. A földszinti részhez építettek egy teraszt, ami a képeken is látszik, ez viszont nincs feltüntetve a térképszelvényen.
________________________________________
Főbb jellemzők:
Alapterület: 138 m2, 3 szoba
telek: 630 m2
Építés éve: 1991
Szerkezet: Hagyományos, részben alápincézett, földszint+tetőtér beépítés, pince
Állapot: Közepes állapotú
Közművek: Gázkazánnal fűtött. Melegvíz-ellátás jelenleg nincs, a villanybojler hiányzik.
Kiegészítők: Különálló, de rossz állapotú melléképületek (állattartásra), amelyek értéket nem képviselnek. A ház mögötti terasz a térképmásolaton nem szerepel.
________________________________________
Fontos információk:
Az ingatlan jelenlegi állapotában nem alkalmas államilag támogatott hitel felvételére.
CSAK KÉSZPÉNZES vevők jelentkezését várjuk.
Ideális választás azoknak, akik egy megbízható szerkezetű házat keresnek, amit saját ízlésük szerint, felújítással alakíthatnak ki.
Amennyiben felkeltettem érdeklődését, keressen bizalommal!
Az ingatlan csak nálunk vásárolható meg!
41500000 Ft