Eladó Ház- házrész
Hirdetéskód: 9181800
Gyöngyös Kossuth Lajos utca 22 - OTP Ingatlanpont Iroda
895 m2
ALAPTERÜLET4
SZOBASZÁMnincs megadva
ÉPÍTÉSnincs megadva
FŰTÉS- CSOK igénybe vehető nem
- Tetőtér beépíthető nem
- Építés éve 1980
- Klíma nem
- Szigetelt nem
A+++
A++
A+
A
B
C
D
E
F
G
H
I
Az ingatlan leírása
Heves megye, Karácsond. Gyöngyöstől 10 km-re a Mátra lábánál, a falu legjobb utcájában, , központhoz közel, tégla falazatú stabil családi ház garázzsal eladó.
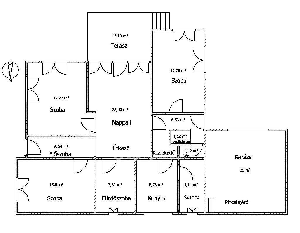
Az 895 m2-s telken 109 m2 hasznos alapterületű ház 1980-ben épült.
A házban nappali + 3 szoba, konyha, fürdőszoba, külön WC, közlekedők, kamra található.
A tetőtér beépíthető.
A ház alatt 23 m2-s száraz pince van, melyet a 25 m2-s garázsból lehet megközelíteni.
A nappaliból lehet kijutni a 12 m2-s fedett teraszra.
A telek gondozott, a kertben gyümölcsfák.
Nyugodt, csendes környezet. A település autóbusszal, személyautóval (M3 autópálya lehajtó közelsége) és vonattal egyaránt jól megközelíthető.
Buszok járnak Budapestre és Tisza-tó felé óránként.
A település környezetében számos munkalehetőség.
A településen belül pedig bölcsőde, óvoda, iskola, orvosi rendelő, posta.
Ha felkeltette érdeklődését, hívjon!
Az ingatlan alkalmas a falusi CSOK igénybevételére. Ügyvédi háttérrel, ingyenes pénzügyi tanácsadással és kedvezményes hitellel segítjük vásárlását!
Az 895 m2-s telken 109 m2 hasznos alapterületű ház 1980-ben épült.
A házban nappali + 3 szoba, konyha, fürdőszoba, külön WC, közlekedők, kamra található.
A tetőtér beépíthető.
A ház alatt 23 m2-s száraz pince van, melyet a 25 m2-s garázsból lehet megközelíteni.
A nappaliból lehet kijutni a 12 m2-s fedett teraszra.
A telek gondozott, a kertben gyümölcsfák.
Nyugodt, csendes környezet. A település autóbusszal, személyautóval (M3 autópálya lehajtó közelsége) és vonattal egyaránt jól megközelíthető.
Buszok járnak Budapestre és Tisza-tó felé óránként.
A település környezetében számos munkalehetőség.
A településen belül pedig bölcsőde, óvoda, iskola, orvosi rendelő, posta.
Ha felkeltette érdeklődését, hívjon!
Az ingatlan alkalmas a falusi CSOK igénybevételére. Ügyvédi háttérrel, ingyenes pénzügyi tanácsadással és kedvezményes hitellel segítjük vásárlását!