Eladó Ház- házrész
Hirdetéskód: 9181903
Mov-Ing Home
1176 m2
ALAPTERÜLET3
SZOBASZÁMnincs megadva
ÉPÍTÉSnincs megadva
FŰTÉS- CSOK igénybe vehető nem
- Tetőtér beépíthető nem
- Építés éve 1970
- Klíma nem
- Szigetelt nem
A+++
A++
A+
A
B
C
D
E
F
G
H
I
Az ingatlan leírása
Két utcáról nyíló, felújított családi ház tágas telekkel Jánossomorján, percekre az osztrák határtól!
Leírás:
Jánossomorján, csendes és rendezett környezetben eladóvá vált egy 106 m²-es, földszintes, 3 szobás családi ház, mely egy hatalmas, 1176 m²-es telken helyezkedik el. Az ingatlan kiváló lehetőséget kínál családoknak, Ausztriába ingázóknak, vagy befektetőknek egyaránt.
Az ingatlanról:
Az 1970-ben épült, masszív tégla falazatú ház 12 évvel ezelőtt egy jelentős felújításon esett át. Ennek keretében teljesen új cserépfedést kapott a tető, és a villanyvezeték-hálózatot is korszerűsítették. A régi ablakokat hőszigetelt, műanyag nyílászárókra cserélték, melyek redőnnyel felszereltek.
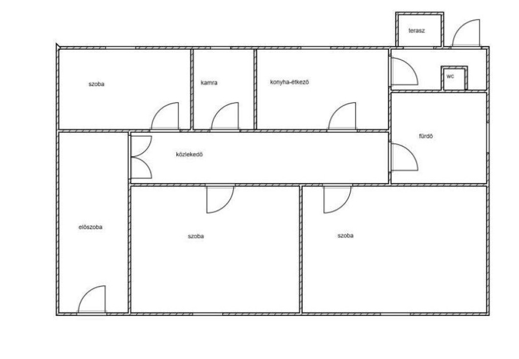
A ház elrendezése a mellékelt alaprajz szerint:
3 külön bejáratú, tágas szoba
Konyha-étkező
Kamra
Fürdőszoba
Külön WC
Előszoba és közlekedő
Egy hangulatos, kb. 4 m²-es fedett terasz
A déli tájolásnak köszönhetően a szobák világosak és napfényesek. A ház alatt egy 18 m²-es száraz pince is található, amely kiválóan alkalmas tárolásra.
Műszaki tartalom és extrák:
Fűtés: A fűtési rendszert kettős megoldás biztosítja: egy gázkazán és egy vegyes tüzelésű kazán is rendelkezésre áll, így a fűtés gazdaságosan és rugalmasan alakítható.
Vízellátás: Az ingatlan saját vízműrendszerrel rendelkezik, így a városi vízdíjtól mentes. A gáz és a csatorna a városi hálózatra van kötve.
Parkolás és telek: A telek különlegessége, hogy két utcáról is megközelíthető. Az udvarban több autó számára is van beállási lehetőség, valamint egy garázs és további melléképületek (műhely, tároló) is tartoznak az ingatlanhoz. A hatalmas kert gazdálkodásra, pihenőkert kialakítására vagy akár a ház építésére is lehetőséget ad.
Elhelyezkedés:
Jánossomorja egy dinamikusan fejlődő város kiváló infrastruktúrával. Az ingatlan csendes utcában található, mégis közel a központhoz, boltokhoz, iskolához. A legnagyobb előnye az elhelyezkedésének, hogy az osztrák határ mindössze néhány perces autóúttal elérhető, ami napi ingázáshoz is tökéletessé teszi.
Ez a ház tökéletes választás, ha egy stabil alapokon álló, már részben felújított, de saját ízlésére formálható otthont keres egy stratégiailag is kiváló helyen.
Amennyiben a hirdetés felkeltette érdeklődését, keressen bizalommal a megadott telefonszámon egy személyes megtekintésért!
Leírás:
Jánossomorján, csendes és rendezett környezetben eladóvá vált egy 106 m²-es, földszintes, 3 szobás családi ház, mely egy hatalmas, 1176 m²-es telken helyezkedik el. Az ingatlan kiváló lehetőséget kínál családoknak, Ausztriába ingázóknak, vagy befektetőknek egyaránt.
Az ingatlanról:
Az 1970-ben épült, masszív tégla falazatú ház 12 évvel ezelőtt egy jelentős felújításon esett át. Ennek keretében teljesen új cserépfedést kapott a tető, és a villanyvezeték-hálózatot is korszerűsítették. A régi ablakokat hőszigetelt, műanyag nyílászárókra cserélték, melyek redőnnyel felszereltek.
A ház elrendezése a mellékelt alaprajz szerint:
3 külön bejáratú, tágas szoba
Konyha-étkező
Kamra
Fürdőszoba
Külön WC
Előszoba és közlekedő
Egy hangulatos, kb. 4 m²-es fedett terasz
A déli tájolásnak köszönhetően a szobák világosak és napfényesek. A ház alatt egy 18 m²-es száraz pince is található, amely kiválóan alkalmas tárolásra.
Műszaki tartalom és extrák:
Fűtés: A fűtési rendszert kettős megoldás biztosítja: egy gázkazán és egy vegyes tüzelésű kazán is rendelkezésre áll, így a fűtés gazdaságosan és rugalmasan alakítható.
Vízellátás: Az ingatlan saját vízműrendszerrel rendelkezik, így a városi vízdíjtól mentes. A gáz és a csatorna a városi hálózatra van kötve.
Parkolás és telek: A telek különlegessége, hogy két utcáról is megközelíthető. Az udvarban több autó számára is van beállási lehetőség, valamint egy garázs és további melléképületek (műhely, tároló) is tartoznak az ingatlanhoz. A hatalmas kert gazdálkodásra, pihenőkert kialakítására vagy akár a ház építésére is lehetőséget ad.
Elhelyezkedés:
Jánossomorja egy dinamikusan fejlődő város kiváló infrastruktúrával. Az ingatlan csendes utcában található, mégis közel a központhoz, boltokhoz, iskolához. A legnagyobb előnye az elhelyezkedésének, hogy az osztrák határ mindössze néhány perces autóúttal elérhető, ami napi ingázáshoz is tökéletessé teszi.
Ez a ház tökéletes választás, ha egy stabil alapokon álló, már részben felújított, de saját ízlésére formálható otthont keres egy stratégiailag is kiváló helyen.
Amennyiben a hirdetés felkeltette érdeklődését, keressen bizalommal a megadott telefonszámon egy személyes megtekintésért!