Eladó Ház- házrész
Hirdetéskód: 9183235
Kulcs-Pont Ingatlan Kft.
464 m2
ALAPTERÜLET4
SZOBASZÁMnincs megadva
ÉPÍTÉSnincs megadva
FŰTÉS- CSOK igénybe vehető nem
- Tetőtér beépíthető nem
- Építés éve 2025
- Klíma nem
- Szigetelt nem
A+++
A++
A+
A
B
C
D
E
F
G
H
I
Az ingatlan leírása
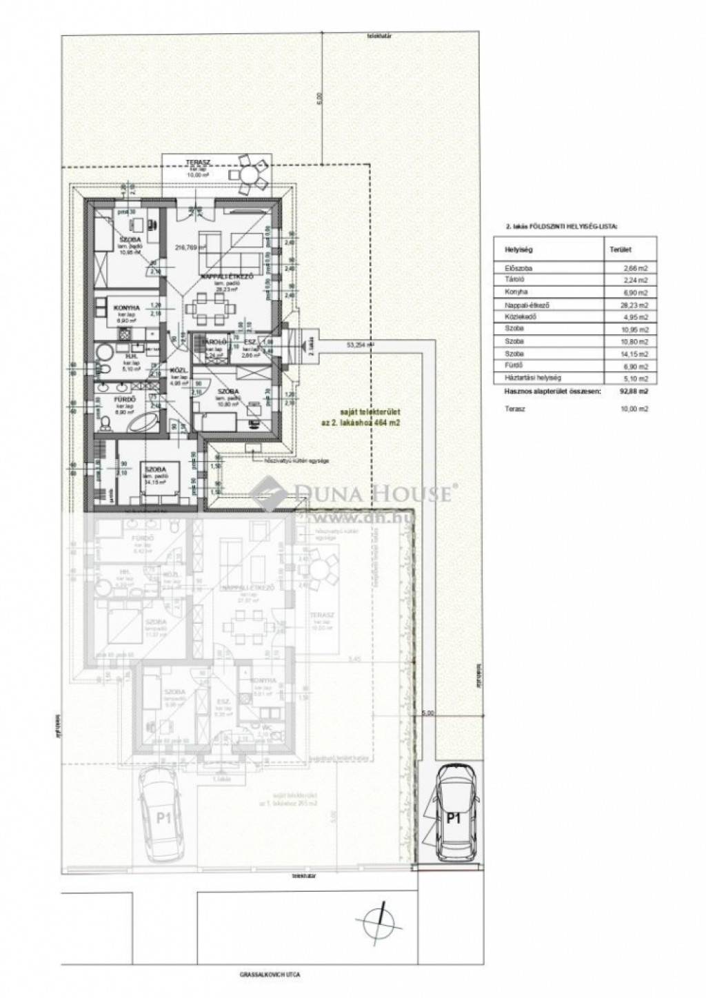
Gödöllő központhoz közeli részén épülő, modern nappali + 3 szobás ikerházfél eladó terasszal, saját nagyobb telekkel.
A 92,8 m²-es családi házhoz 10 m²-es terasz és 464 m² saját telek tartozik. Az otthon fűtését padlófűtés és energiatakarékos hőszivattyú biztosítja korszerű, környezetbarát megoldás a komfort érdekében.
Az ingatlan elrendezése:
Tágas amerikai konyhás nappali (28,23 m²), keleti tájolással
3 külön nyíló, világos szoba (ÉK-i tájolással)
Fürdőszoba WC-vel
Külön tároló és háztartási helyiség
Közvetlen kertkapcsolat a teraszról
Ez az ingatlan ideális választás azoknak, akik modern, energiatakarékos otthont keresnek zöldövezeti környezetben.
Műszaki paraméterek:
- 30-as Porotherm tégla falazat + 15 cm dyrvit szigetelés,
- beton cserépfedés,
- födémen 30 cm vastag kőzetgyapot, aljzaton 15 cm, lábazaton 13 cm szigetelés,
- 3 rétegű, 5 légkamrás műanyag nyílászárók,
- hőszivattyú padlófűtéses hőleadással,
- dupla 30-as fal a két ház között
- energetikai besorolása: A
A 464 nm-es telekre épülő ingatlanhoz az udvarban gyalogos bejáró és fedett kocsibeálló kerül kialakításra
Helyi busz, hév, autópálya, iskola, óvoda, közért stb. percek alatt könnyen elérhető!
Az ingatlant több referenciával rendelkező, megbízható kivitelező építi! Burkolatok, belső ajtók a vevői igényei szerint még szabadon választhatók!
A 92,8 m²-es családi házhoz 10 m²-es terasz és 464 m² saját telek tartozik. Az otthon fűtését padlófűtés és energiatakarékos hőszivattyú biztosítja korszerű, környezetbarát megoldás a komfort érdekében.
Az ingatlan elrendezése:
Tágas amerikai konyhás nappali (28,23 m²), keleti tájolással
3 külön nyíló, világos szoba (ÉK-i tájolással)
Fürdőszoba WC-vel
Külön tároló és háztartási helyiség
Közvetlen kertkapcsolat a teraszról
Ez az ingatlan ideális választás azoknak, akik modern, energiatakarékos otthont keresnek zöldövezeti környezetben.
Műszaki paraméterek:
- 30-as Porotherm tégla falazat + 15 cm dyrvit szigetelés,
- beton cserépfedés,
- födémen 30 cm vastag kőzetgyapot, aljzaton 15 cm, lábazaton 13 cm szigetelés,
- 3 rétegű, 5 légkamrás műanyag nyílászárók,
- hőszivattyú padlófűtéses hőleadással,
- dupla 30-as fal a két ház között
- energetikai besorolása: A
A 464 nm-es telekre épülő ingatlanhoz az udvarban gyalogos bejáró és fedett kocsibeálló kerül kialakításra
Helyi busz, hév, autópálya, iskola, óvoda, közért stb. percek alatt könnyen elérhető!
Az ingatlant több referenciával rendelkező, megbízható kivitelező építi! Burkolatok, belső ajtók a vevői igényei szerint még szabadon választhatók!